Oficina en venta ubicado en La Falda

  • USD 58.000
Guido spano 20 bah, La Falda, Bahía Blanca

Descripción

Proyecto en venta
Guido Sapano 20 , Barrio La Falda . A metros de Sarmiento y enfrente al parque campaña al desierto
El edificio cuenta en planta baja con un local amplio de 140 mts cubiertos y dos patios ( uno al frente y otro atras ) ideal para rubro gastronómico .
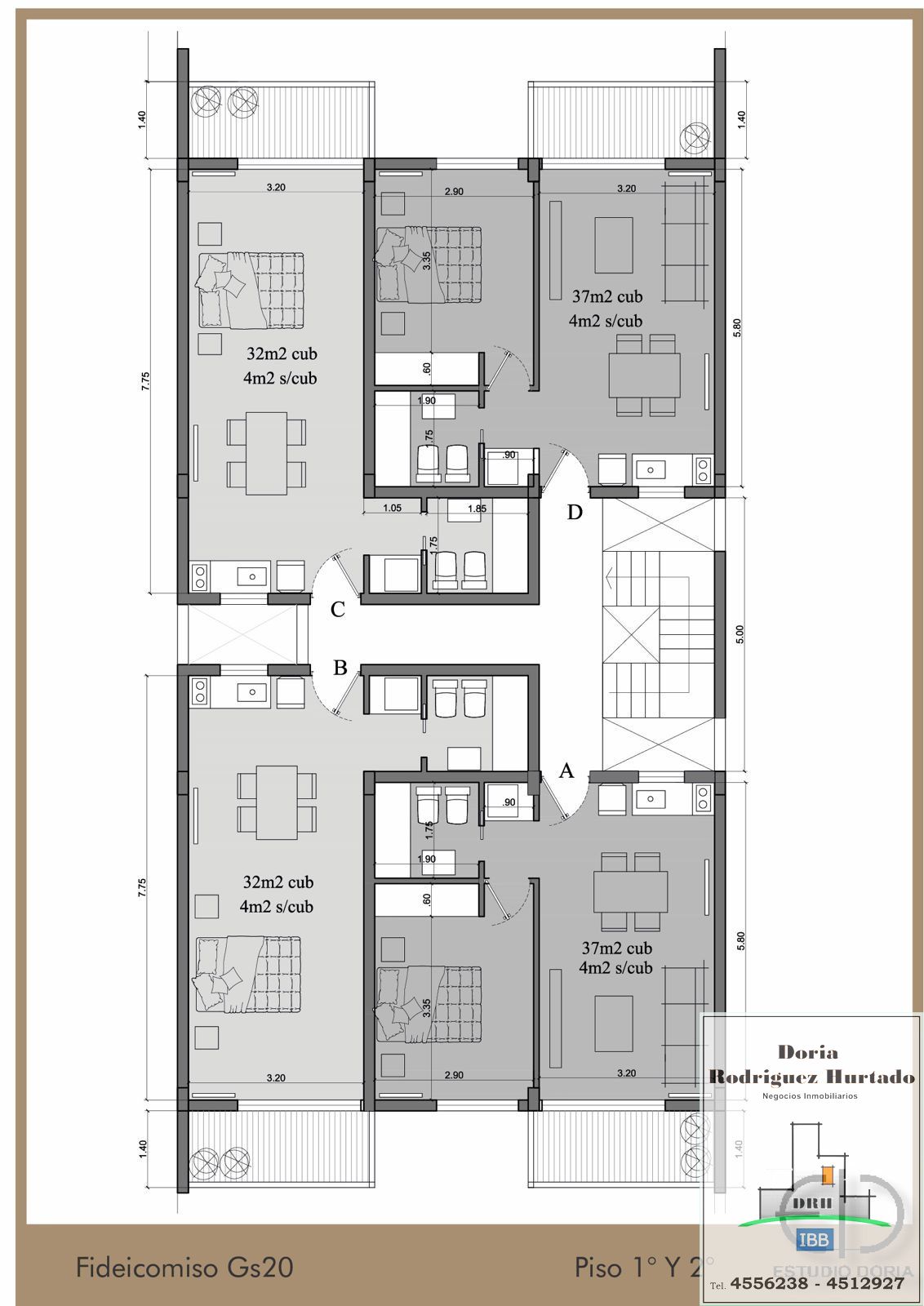
Por escalera 2 pisos mas cada uno con 4 unidades que pueden ser oficinas o departamentos y en el ultimo piso terrazas privadas
Detalles de construcción : Calefacción por radiadores por caldera general ; termotanque y kitchenette eléctrica ; pisos porcelanico ; divisiones internar con placa de yeso con aislación ; cielorraso de hormigón rustico ; aberturas de aluminio con dvh

UNIDADES DISPONIBLES Y VALORES
2ºB 32 MTS + 4 BALCON + TERRAZA PROPIA DE 40 MTS = U$S 68.000
2ºC 32 MTS + 4 BALCON = U$S 58.000
2ºD 37 MTS + 4 BALCON + TERRAZA PROPIA DE 50 MTS = U$S 85.000
TERRAZAS DISPONIBLES : A Y C = U$S 20.000 LAS MISMAS SE ENTREGAN CON BAÑO PROPIO , MUROS DE 1.80 ESPACIO PARA COLOCAR PARRILLA Y BACHA CON GRIFERIA .

DESARROLLA : ESTUDIO DORIA
ESCRIBANIA : CARLA MERLINI
VENDE : DORIA RODRIGUEZ HURTADO
FORMA DE PAGO : 50% O + A LA FIRMA DEL CONTRATO DE ADHESION Y 12 CUOTAS EN PESOS CON CAC

¡Llámenos para conocer más en detalle esta propiedad!
Tel: 2915714400
Email: doria-hurtado@bvconline.com.ar
Doria – Rodriguez Hurtado Propiedades
doriarodriguezhurtado.com.ar

Detalles

Actualizado en octubre 2, 2025 a 2:11 pm
  • ID: DOR-183429
  • Precio: USD 58.000
  • Sup. cubierta: 32.00 m²
  • Sup. descubierta: 4.00 m²
  • Sup. semicubierta: 0.00 m²
  • Sup. total: 36.00 m²
  • Ambiente: 1
  • Baño: 1
  • Cochera: 0
  • Tipo: Oficinas
  • Estado: En venta
  • Dirección Guido spano 20 bah
  • Ciudad Bahía Blanca
  • Provincia Buenos Aires Interior
  • Localidad o barrio La Falda

Información de contacto

Quiero saber más sobre esta propiedad

Propiedades similares

Comparar listados

Comparar
Abrir chat